Loading...

Kampala, Uganda

Completed Project

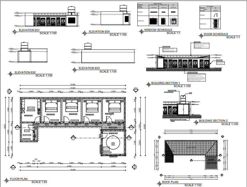
Extra Family Rooms — Kasese District

Extra Family Rooms in Kasese by Aura Build Ltd
Location:
Kasese District, Uganda
Project Type:
Home Design
Services Provided:
Architectural Design, Bills of Quantities
Status:
Completed

Project Overview

This project involved the full planning, design and project estimation (BOQs) of extra rooms for a family home in Kasese District.
The client did not need the usual boys' quarters concept. We sat with her, understood what she needed and used the information to get her exactly what she needed.

Aura Build Ltd handled planning, architectural design, Cost estimation, material specification, and on-site supervision to ensure durability, compliance, and financial control throughout execution.

Planning a Similar Project?

Speak directly with our civil engineering team for professional advice, cost estimates, and structural planning.

Request Consultation WhatsApp Engineer

Need Professional Engineering Services in Uganda?

Aura Build Ltd provides architectural design, geotechnical works, surveying, and full construction services across Uganda.

Get a Project Quote WhatsApp Us
What We Do

Hire Us For:

Building_Construction_in_Kampala
General Construction
Architectural_Design_&_Building_Plans
Architectural Design
Geotechnical_Investigations_&_Soil_Testing
Geotechnical Investigation
Structural_Engineering_&_Structural_Design
Structural Analsis & Design
Land_Surveying_&_Site_Layout
Land Surveying
Quantity_Surveying_(BOQs & Cost Estimates)
Bills of Quantities & Costing

Message Us Directly & Instantly

Planning to build? Talk to our engineers for professional advice, cost estimates, and project planning.