Loading...

Kampala, Uganda

Design + Planning Project Case Study

Compact 5-Bedroom Urban Home on a Small Plot

We transformed a constrained residential brief into a build-ready concept that ensures space efficiency, structural logic, and long-term functionality.

Concept render for a compact two-level residential house by Aura Build Ltd
Location:
Entebbe, Uganda
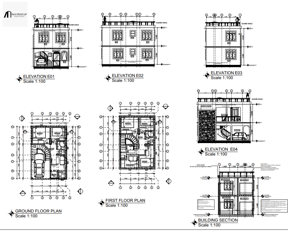
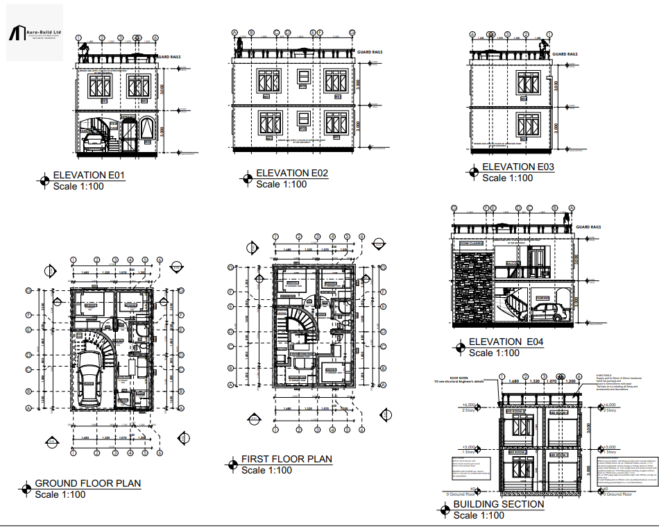
Plot Geometry:
23 ft x 36.5 ft x 7.5 ft x 29.4 ft
Designed Building Area:
5.7 m x 8.6 m (approx. 49 sq.m per level)
Ground Floor:
2 bedrooms, sitting room, kitchen, parking
First Floor:
3 bedrooms, sitting room, kitchen
Key Design Decision:
Solid slab roof for extra terrace space due limited compound

Client Brief and Site Challenge

The client needed a complete family house but on a really small plot, with parking, dual-level living spaces, and enough bedrooms for a larger household.
The biggest challenge was achieving this room program without creating congested circulation or sacrificing practical outdoor use.

Aura-Build Ltd handled this project as an integrated planning and design assignment. We resolved the footprint first, then coordinated circulation, floor stacking, and functional zoning before moving into documentation.

Space Planning

Level Client's Requirements Planning Response
Ground Floor 2 bedrooms, sitting room, kitchen, parking Functional zoning with clear entry sequence, protected parking, and efficient internal movement paths.
First Floor 3 bedrooms, sitting room, kitchen We increased usable area by using vertical stacking while keeping the footprint compact and structurally organized.
Roof / Outdoor Compound area for family activity We considered a solid slab roof to create additional terrace space and any future multi-purpose outdoor utility.

Engineering Decisions That Increased Project Value

  • Used vertical planning to deliver a 5-bedroom house within a very small plot.
  • Maintained parking functionality at ground level while protecting key living spaces.
  • Specified a solid slab roof to recover usable outdoor space where compound area is limited.
  • Set out a construction-ready workflow to reduce redesign risk before execution.

Risk and Quality Controls at Design Stage

  • Space planning validated against the full room program before detailing.
  • Clear circulation logic to reduce future service conflicts during construction.
  • Pre-construction coordination framework prepared for structural and geotechnical alignment.
  • Documentation organized for permit and execution readiness in the next phase.

What Aura-Build Ltd Delivered

  • Project planning and feasibility-driven space allocation.
  • Architectural concept and detailed layout development.
  • Design-stage technical coordination for the coming construction phase.
  • A practical implementation roadmap from drawings to site execution.

We love planning at a hight level.

Talk directly with our team before you build. We help clients avoid costly redesign by resolving any constraints at planning stage.

Request Consultation WhatsApp Engineer
We care about our clients

We do not start with assumptions. We start with constraints, verify feasibility, and then design for safe delivery.

That is how Aura-Build Ltd protects the client's budget, timeline, and structural confidence from day one.

Project Snapshot

Approx. total planned floor area: 98 sq.m

Bedrooms delivered in plan: 5

Main value gain: Terrace from slab roof

Current phase: Planning and design completed

Structured Project Delivery

Step 1: Site Assessment and Constraint Analysis

We evaluated the plot geometry, dimensional limits, and access conditions, then defined a realistic building envelope capable of safely supporting the client’s full project requirements.

Step 2: Functional Space Planning and Concept Design

We developed a coordinated two-level layout that delivered the complete room program while preserving practical circulation, structural efficiency, and optimal use of limited space.

Step 3: Technical Design Coordination

We prepared the project for construction by coordinating structural planning, slab strategy, vertical circulation, and documentation required for safe and efficient site execution.

Step 4: Construction Readiness and Execution Planning

With planning and technical coordination completed, Aura Build Ltd prepares the project for controlled construction delivery under one accountable engineering team.

Frequently Asked Questions

Yes, but only when the project is carefully planned from the beginning. On constrained plots, the key is disciplined space planning, vertical stacking of rooms, and efficient circulation design. Without professional planning, projects like this often become congested, structurally inefficient, or fail to meet functional needs. A coordinated architectural and engineering approach allows the full room program to fit while maintaining comfort and practicality.

The most critical decisions include defining a realistic building footprint, organizing vertical circulation, protecting natural light and ventilation, and allocating outdoor utility space. On tight plots, even small planning mistakes can affect long-term livability. Professional design ensures that every square meter contributes to function, structural stability, and future flexibility.

Before construction begins, the project must move through technical coordination and construction preparation. This includes final structural detailing, cost estimation, permit preparation, and site planning for execution. When these steps are completed properly, the construction phase becomes faster, safer, and far less likely to experience costly redesigns during the build.

Discuss your project before construction begins.

Serious building projects benefit from proper planning.

Speak With Our Team WhatsApp an Engineer
What We Do

Hire Us For:

Building_Construction_in_Kampala
General Construction
Architectural_Design_&_Building_Plans
Architectural Design
Geotechnical_Investigations_&_Soil_Testing
Geotechnical Investigation
Structural_Engineering_&_Structural_Design
Structural Analysis & Design
Land_Surveying_&_Site_Layout
Land Surveying
Quantity_Surveying_(BOQs & Cost Estimates)
Bills of Quantities & Costing

Message Us Directly & Instantly

Planning to build? Talk to our engineers for professional advice, cost estimates, and project planning.